
Bought with
2 Baths
1,871 SqFt
2 Baths
1,871 SqFt
Key Details
Property Type Condo
Sub Type Condominium
Listing Status Active
Purchase Type For Rent
Square Footage 1,871 sqft
MLS Listing ID PR9116613
Full Baths 2
HOA Y/N No
Year Built 1950
Property Sub-Type Condominium
Source Stellar MLS
Property Description
A exceptional opportunity to lease a private, full-floor office suite in one of the few commercial-only buildings in Old San Juan. Prominently located opposite the US Federal Courthouse, and directly across from Doña Fela parking garage, plus a cargo/drop-off zone at building entrance, this address offers unparalleled accessibility for staff and clients—a favorable advantage in the historic zone.
This fully remodeled, turn-key office occupies the entire mezzanine level of the building. Access to this floor is key-controlled via elevator, ensuring exclusive entry for authorized personnel only. Inside, the space has been thoughtfully renovated with contemporary finishes: elegant glass partitions defining private conference rooms and meeting areas; recessed lighting and sleek tile flooring throughout; central A/C (5-ton unit); fully furnished and move-in ready with a corporate aesthetic.
Ideal for corporate tenants seeking a private, professional environment in the heart of Old San Juan - particularly law firms, consulting offices, or financial services firms. Located just steps from the U.S. Federal Courthouse, major banks, and government institutions, this office combines privacy, security, and accessibility in one of Puerto Rico's most distinguished business addresses.
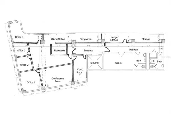
Layout includes: reception, clerk station, 4 offices, 2 conference rooms, filing area, lounge/kitchen, 2 bathrooms, and utility room.
Rent includes: water, high-speed internet, CAM, property taxes, and condo insurance. Not included: electricity & A/C maintenance.
Location
State PR
County San Juan
Area 00901 - San Juan
Interior
Interior Features Eat-in Kitchen, Window Treatments
Heating None
Cooling Central Air
Furnishings Negotiable
Appliance Refrigerator
Laundry None
Exterior
Parking Features Other
Community Features Wheelchair Access
Amenities Available Elevator(s), Gated, Lobby Key Required, Maintenance
View City
Garage false
Private Pool No
Building
Lot Description Historic District
Story 8
Entry Level One
New Construction false
Others
Pets Allowed No
Membership Fee Required None
Virtual Tour https://www.propertypanorama.com/instaview/stellar/PR9116613

GET MORE INFORMATION

EPIC Smart Assistant